Tato územní studie je označena číslem ÚS 57/I – 04/2014 a byla zaregistrována do seznamu ÚS dne 5. 2. 2016. Zpracovatelem je útvar hlavního architekta a stavebního řádu MMO, autory Ing. arch. Hana Paclová a Ing. arch. Blanka Bittnerová. Dokumentace byla zpracována na základě žádosti pana M.K.
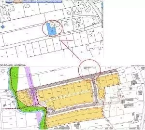
Řešená lokalita se nachází v jižní části Hrabové, západně od Paskovské ulice a je přístupná z místní komunikace Na Šajaru. Ze severu, východu a jihu je lemována zastavěným územím, západní hranici tvoří krajinná zeleň kolem potoka Ščučí.
V územním plánu je tato rozvojová zastavitelná plocha označena jako plocha B 226 a je tvořena dvaceti parcelami o celkové ploše 5,79 ha, které jsou využívány vesměs jako orná půda. Vlastníky těchto parcel jsou občané M.K., D.H., T.M., J.Š., R.B., V.B., D.V., B.H a L.H.
Studie ke stažení: US_57_I_04_2014 (PDF)
Dopravně je tato lokalita napojena na Paskovskou ulici prostřednictvím stávající místní komunikace Na Šajaru. Pozn.: Ondrěj Klíma upozornil na nesrovnalost předchozí věty a ilustrační fotky. Lokalita se nachází o něco blíže ke statku, než je náhledové foto.
Podle územní studie se zde má vybudovat 31 rodinných domů. Dopravní obsluha má být zajištěna pomocí dvou nových přímých obousměrných komunikací, umístěných uprostřed zástavby a ukončených na západních koncích obratišti motorových vozidel. Ta delší (pokračování komunikace Na Šajaru) bude sloužit pro dopravní obsluhu 14 rodinných domů, ta kratší pro dopravní obsluhu 17 rodinných domů.
Napojení na pitnou vodu a na splaškovou kanalizaci bude provedeno na stávající potrubí, umístěné na Paskovské ulici. Zde je k dispozici i nízkotlaký rozvod zemního plynu. Srážkové vody z chodníků a z vozovky a ze zastavěných ploch budou likvidovány zasakováním nebo budou odvedeny dešťovou kanalizací.
Tato územní studie byla projednána radou městského obvodu dne 9. 9. 2015 (Naď, Trávníček, Balušek, Lyčka, Pospěch) a vzata na vědomí bez připomínek. V komisi výstavby, dopravy a ekologie (Dvořák, Chlupatý, Rundt, Vašnovský, Holiš, Hrabovský) projednávána nebyla.
I když od té doby uplynulo více jak 6 let, očekávaná výstavba 31 rodinných domů v této lokalitě nebyla doposud zahájena.
Komentář Vladimíra Slavíka:
Je velmi pravděpodobné, že hlavní příčina tohoto stavu je ve vysoké finanční náročnosti výstavby dvou nových cest, kanalizace, rozvodu vody a energií. Doposud se nenašel developer, který by uvedené pozemky od současných majitelů odkoupil, vybudoval infrastrukturu, zasíťovanou plochu rozparceloval a jednotlivé parcely nabídl zájemcům k odkoupení k výstavbě RD. V opačném případě by se počet obyvatel Hrabové zvýšil cca o 90 občanů a počet motorových vozidel, používajících Paskovskou ulici, o cca 50 aut.
Autor textu: Vladimír Slavík



